Gott—Grigoli is a conceptual architecture practice based in Cleveland, Ohio.

gott.grigoli@gmail . com
← WORK
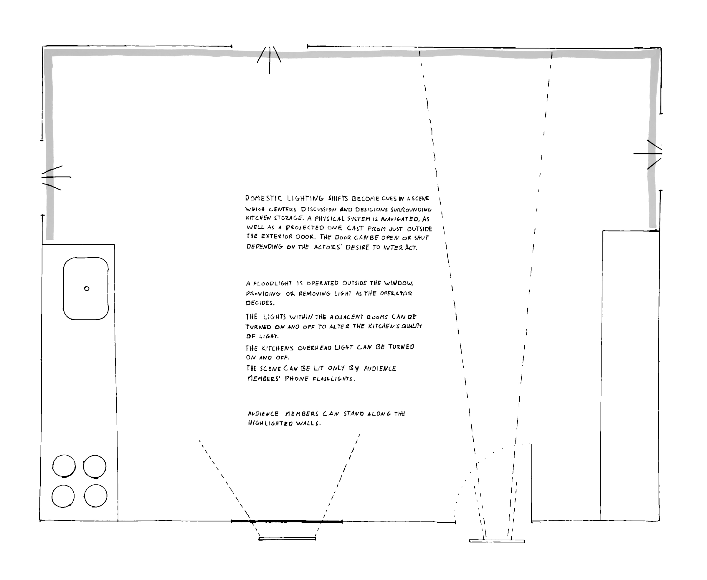
An Architectural Chamber Play on Collective Living
chamberplay01
chamberplay02
chamberplay03
chamberplay04
chamberplay05